
courtesy Stomping Ground Comedy Theatre

Audio By Carbonatix
When the Stomping Ground Comedy Theatre
Last week, nonprofit theater company Stomping Ground launched its first campaign to raise $30,000 to lease space in the Design District. At the time of writing, the campaign was one of the top-ranked theater projects on Kickstarter.
Lindsay Goldapp, Stomping Ground’s managing director, says she and the rest of Stomping Ground’s board are still completing the terms of the lease for the space at 1350 Manufacturing St. The company has enough money to sign the lease, but board members want to make sure they have enough to turn the spot into a functional performance and education space.
They raised $14,000 in a week, a feat that Goldapp calls “incredible.”
“We cannot believe it,” she says. “It’s bananas.”

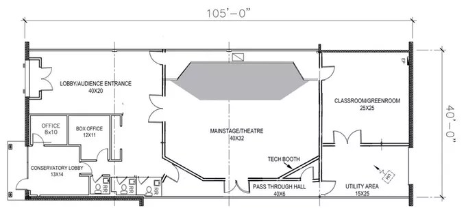
An early blueprint shows the planned layout of the space.
courtesy Stomping Ground Comedy Theatre
The Stomping Ground crew plans to use the 4,200-square-foot space as a multitiered facility. Plans include a 75-seat theater for shows, business offices for the theater’s staff and a classroom space. Stomping Ground will offer instruction in improv, sketch and stand-up comedy, as well as Improv For Life classes, which teach improvisational principles to people with anxiety and caretakers of Alzheimer’s patients.
“For us right now, especially with a lot of our Improv For Life programs, we have to go where these populations are because we don’t have a space to host them in unless we rent the space,”
Location was a key factor in choosing Stomping Ground’s new space. The Manufacturing Street spot is easily accessible and can help direct foot traffic thanks to nearby entertainment and social attractions such as the Peticolas Brewing Co., the Bowlounge
“Dallas isn’t a walking city,”
The donations are still rolling in, and the theater has until Dec. 27 to meet its all-or-nothing $30,000 goal. Goldapp says she’s encouraged by the monetary support the theater has received, which is coming from Dallas and beyond.
“We’ve seen some of these donations that are coming from Kickstarter traffic that didn’t come from us or social media,” she says. “Some came from someone on Kickstarter who just stumbled across us and love what we’re doing.”

Goldapp and Improv for Life program director Andrea Kyprianou Baum stand outside the Manufacturing Street space they hope to turn into a theater with a ,000 Kickstarter campaign that’s underway.
courtesy Stomping Ground Comedy Theatre